client:  Tulsa City County Library 

employer: MSR Design (formerly MS&R, Ltd) Meyer, Scherer & Rockcastle

role: Project Architect | Designer | Modeling & Rendering

year: 2012

photos: MSR Design, Lara Swimmer, Modus Engineering + misc. 

renderings & video: MSR Design & mrlw 

awards:

2018 AIA / ALA Library Building Award 

2019 New Landmark Library – Library Journal 

The Tulsa City County Library project was another that I was lucky enough to help on during my work as an independent consultant with MS&R. 

It’s an amazing transformation of an existing facility to bring an old library back to life and into modernity. 

From the deep dives on what it means to skin a parking garage and create an edge for the Secret Garden, to working with the team to develop a solution specifically suited to that place, and with a timeless quality. 

This 144,000 SF, $55 million renovation and addition was the last one that I worked on during my ‘second round’ at MS&R.

LOCATION

The existing central library is located in downtown Tulsa and was a key component in revitalizing the district.

TCCL_Site_city
TULSA - DOWNTOWN REGION
TCCL_SiteArea
SITE AREA
SITE

The site itself is located next door to the Tulsa Aloft hotel, adjacent to the stadium, convention center, and multiple venues in downtown Tulsa. The plaza area north of the site is an existing underground garage. 

The existing surface parking to the west of the building was turned into a ‘Secret Garden’ with the 148 space parking garage serving as the backdrop to a 400 person outdoor event area. 

DESIGN CONCEPTS
SUSTAINABILITY
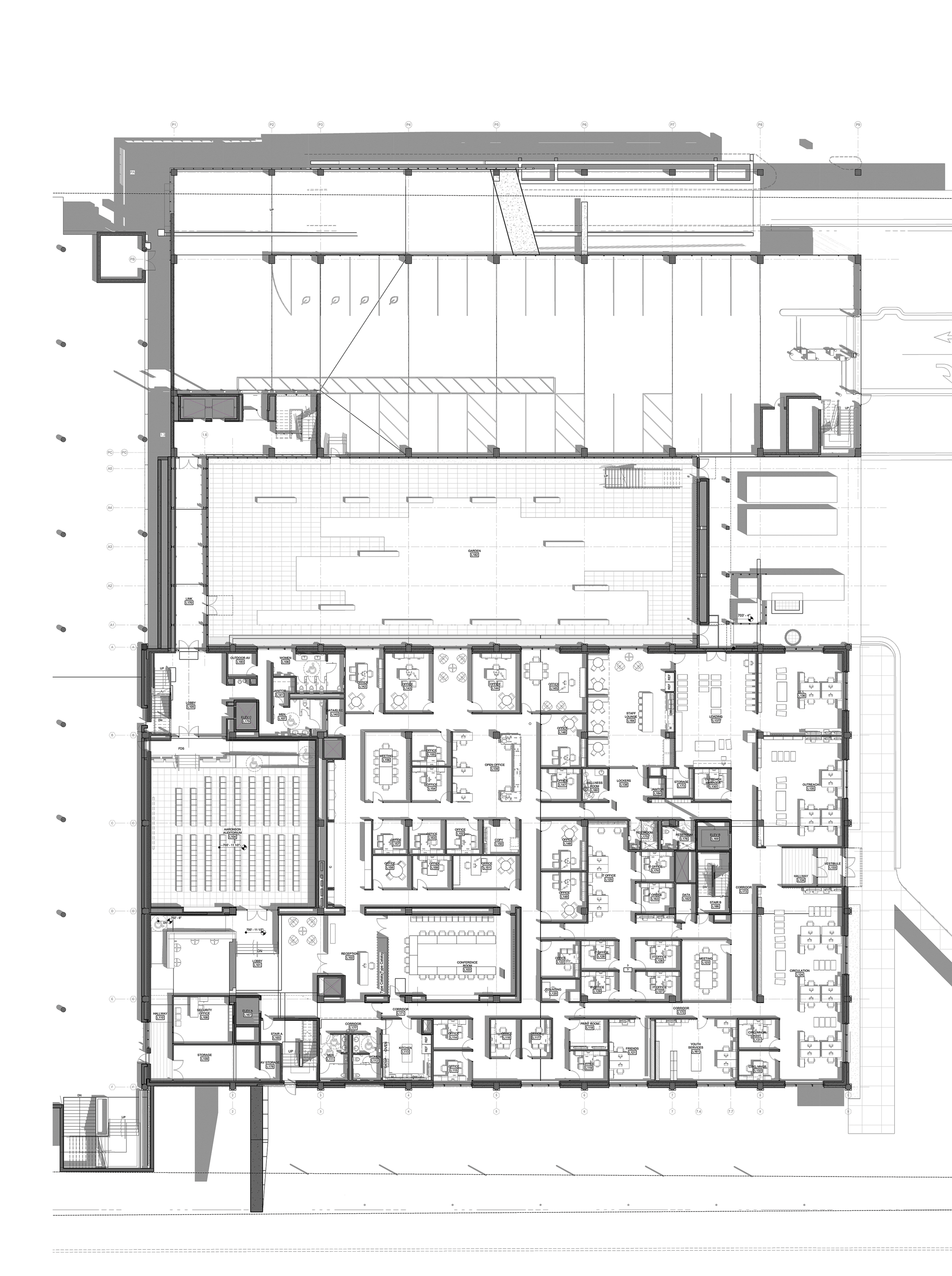
PLANS
FACADE STUDIES - LIBRARY
FACADE STUDIES - PARKING GARAGE
ELEVATIONS
RENDERINGS
RENDERED VIDEOS
INTERIOR STUDIES - AUDITORIUM

Full disclosure – I got onto this project at the front end of the design development phase, while there were still things being ironed out with the design – but the schematic design and programming was largely complete. I worked thru the parking garage, portions of the link, the auditorium (not included in the final project) as well as existing conditions,  client renderings, and site elements. Portions of the interior were in development – the vertical circulation was still being hammered out. 

The project was completed well after I had departed my independent consulting for the firm, however I am forever grateful for the opportunity to be involved with this project. 

RENDERINGS
RENDERED VIDEO - INTERIORS
EXTERIOR IMAGES
EXTERIOR IMAGES - BALCONY
EXTERIOR IMAGES - SECRET GARDEN
INTERIOR IMAGES
NORTH-SOUTH SECTION
EAST-WEST SECTION
CONCLUSION

My time at MS&R taught me to listen first, to take in as much information as you could from the history of place, from the project team and turn that into a thought out and intentional solution to bring quality to the outcome. 

MS&R has always been the best environment and best firm that I’ve been involved with. The level of detail, the in-depth design conversations and the way that design is studied, and re-studied and molded thorough the process has imprinted on me deeply. The firm understands what it means to look at a design from an end result and desired user experience. I’ve had 4-hour long conversations while working there about detail and interactions, that just don’t happen in other firms. 

Share this:

Like this:

Like Loading...